◊ Historic Buchla Modules

Buchla pages > Buchla 100 modules > 190 Dual Reverberation Unit


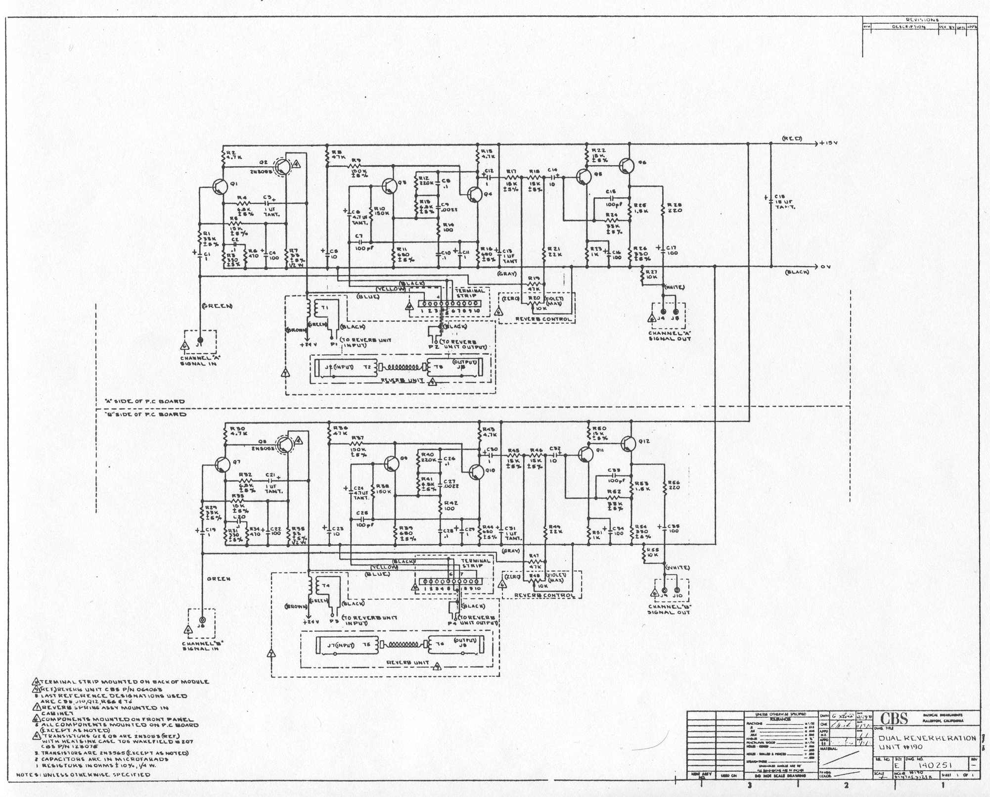
Model 190 Dual Reverberation Unit

Two independent spring type reverberators. Degree of reverberation in continuously variable.


DIY Resources